Autodest Revit是一款新的建筑绘图软件,并且定位为将要取代Autodest CAD的绘图软件爱你,Autodest Revit能够从设计、施工到运营的协调、可靠的项目信息为基础而构建集成流程,因此能够大大降低绘图以及施工的失误率,在使用Autodest Revit绘制平面图时,可以给房间进行上色,从而增加平面的视觉效果。

工具/原料
Autodest Revit。
建筑平面图。
Revit房间标注
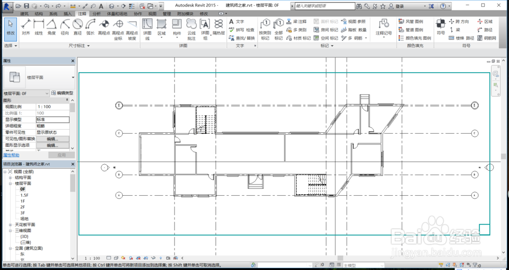
1、首先,我们使用钽吟篑瑜Autodest Revit打开我们需要进行标注和上色的平面图,基础的平面图颜色相同,没有颜色区分,视觉效果一般,我们首先需要进行房间的标注。

2、在Autodest Revit绘图页面上方,选择“建筑”选项卡,在“建筑”选项卡下方的工具中,选择“房间”,即可进行平面图房间标注。

3、确定“房间”命令后,将鼠标移动至平面图中,即可出现系统的线条提示,两条交叉的直线来确定房间的位置,确定房间位置后,单击鼠标进行标注确定。

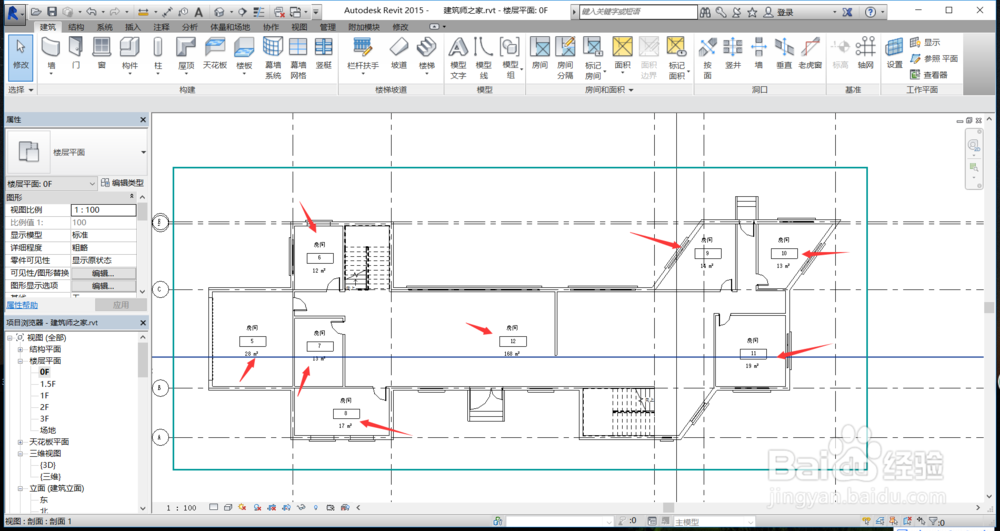
4、命令可以重复标注,不需要多次点击,这样我们即可将所有的房间进行标注,系统默认的标注名称为“房间”,我们可以标注完成后进行修改。

5、将所有的房间都进行标注后,我们按下键盘的ESC键,退出“房间”命令,系统就会自动进行选定房间的标注,这样我们就完成了房间的默认标注。

6、系统默认房间名称都为“房间”,为了进行区分,我们双击名称“房间”,进行修改,可以直接使用数字进行顺序标注,或者使用功能进行标注修改。

7、将所有的房间进行标注修改之后,我们即完成了平面图的房间标注,房间标注是进行平面上色的基础,下面我们即可开始进行平面的上色处理。

Revit填充颜色
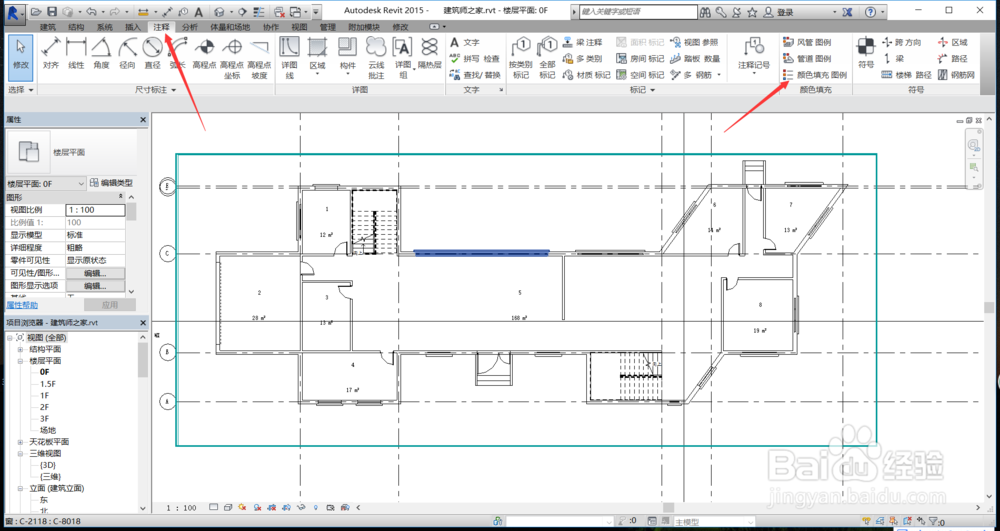
1、再次选择Autodest Revit的“建筑”选项卡,在“房间”选项下方点击“房间和面积”的小箭头,系统会弹出操作选项,选择“颜色方案”。

2、确定“颜色方案”命令后,系统会自动弹出设置窗口,我们需要进行颜色填充的方案设置:在“类别”选项中,选择“房间”;在“颜色”选项中,选择“名称”。

3、完成设置后,系统会自动完成方案的设计,颜色以及对应的房间名称都会显示在下方的空白位置,我们可以根据需要进行颜色的设置,或者直接点击确定。

4、点击“确定”完成设置后,我们会回到平面图页面,但是我们可以看到,平面图的房间并没有变为设置好的颜色,因此接下来我们需要设置应用我们的颜色方案。

5、在Autodest Revit上方选择“注释”选项卡,在此选项卡中选择“颜色填充 殂翼瑟擀实例”选项,进入颜色填充方案的选择,在空白位置点击,即可进入设置页面。

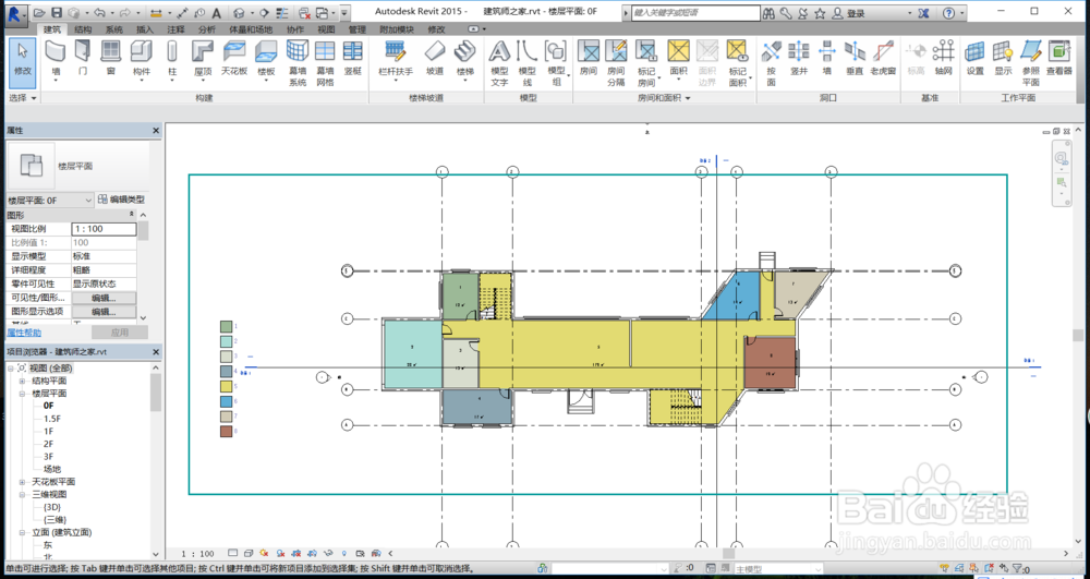
6、“空间类型”选择“房间”;“颜色方案”选择“方案一”;点击确定,回到平面图即可看到平面图已经完成了上色方案。

7、这样我们就基本完成了钽吟篑瑜Autodest Revit的房间标注,以及房间平面的上色,我们在进行房间的上色时,我们可以按照房间的分隔进行上色,也可以按照房间的功能进行上色。
